日期: 2025-12-15 浏览量:83 来源:自然资源新邱分局 责任编辑:张翔宇 文字大小: 大 中 小
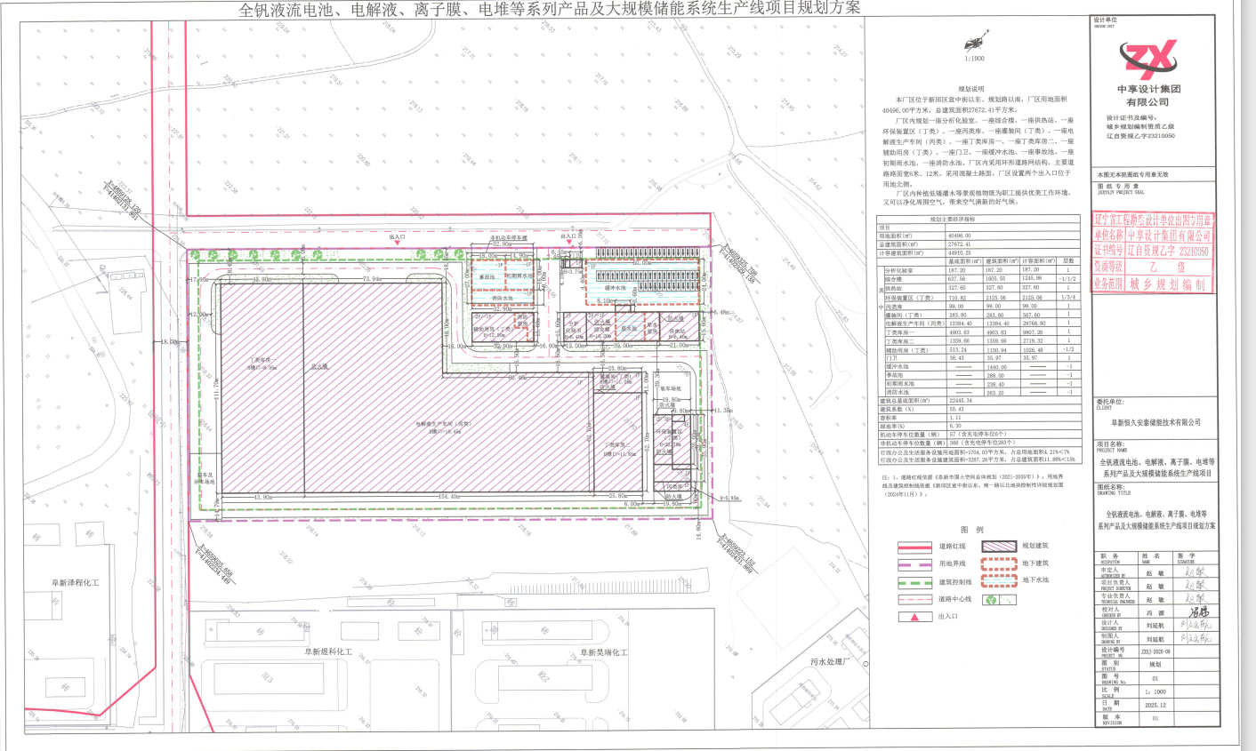
根据《中华人民共和国城乡规划法》、《中华人民共和国行政许可法》有关规定,现将《全钒液流电池、电解液、离子膜、电堆等系列产品及大规模储能系统生产线项目》规划方案予以公示,征求公众意见。如有意见,请在公示日期起7日内向我单位提出,意见反馈方式以书面形式为准。
公示日期:2025年12月15日
公示地点:
1、项目现场。
2、新邱区政府网站(https://www.fxxq.gov.cn/)
联系单位:阜新市新邱区新邱大街东段,阜新市自然资源局新邱分局,邮编123005
联系电话:0418-2695084(传真)
阜新市自然资源局新邱分局
2025年12月15日


主办单位:阜新市新邱区人民政府办公室 版权所有:阜新市人民政府办公室
地址:阜新市新邱区新邱大街53号 邮编:123000 Email:xqzfb@126.com
辽公网安备 21090302210911号
辽ICP备2020012867号 网站标识码:2109030001
建议使用1440*768分辨率 IE9.0及以上版本浏览器
网站监督举报热线:0418--2862648 网站举报邮箱:xqzfb@126.com